Van concept tot technische uitwerking

0
Jaren
ervaring
0 +
Klanten
geholpen
0 +

Afgeronde 
projecten

Als ervaren bouwkundig tekenaar vertaalt DEPTH uw ideeën in heldere, technische bouwtekeningen. Dit is cruciaal bij zowel een bedrijfspand ontwerpen als een kantoor ontwerpen, waarbij elke ruimte naadloos moet aansluiten op uw bedrijfsvisie. Voordat we aan de slag gaan, bespreken we uw plannen uitgebreid, eventueel samen met een kantoorinrichting architect. Bij een verbouwing is het belangrijk om de bestaande situatie nauwkeurig in kaart te brengen. Zo zorgen we ervoor dat de nieuwe tekeningen perfect aansluiten op de huidige staat van het pand.

Bouwkundige tekeningen en omgevingsvergunningen

Bedrijfspand Ontwerpen | Kantoor Ontwerpen | Kantoorinrichting Architect | DEPTH Architecten Oud-Beijerland

Bij het aanvragen van een omgevingsvergunning zijn precieze, bouwkundige tekeningen onmisbaar. DEPTH houdt bij iedere tekening rekening met veiligheid, constructie en materiaalgebruik, zodat u voldoet aan de wettelijke eisen. Dit is niet alleen van belang bij complexere trajecten, maar ook bij meer eenvoudige aanpassingen. Voor een soepel vergunningstraject kunt u rekenen op onze expertise bij de vergunningsaanvraag & omgevingsvergunning, zodat uw plannen snel en zonder onnodige obstakels kunnen worden gerealiseerd.

Bedrijfspand Ontwerpen | Kantoor Ontwerpen | Kantoorinrichting Architect | DEPTH Architecten Oud-Beijerland

Bestek- en werktekeningen voor feilloze uitvoering

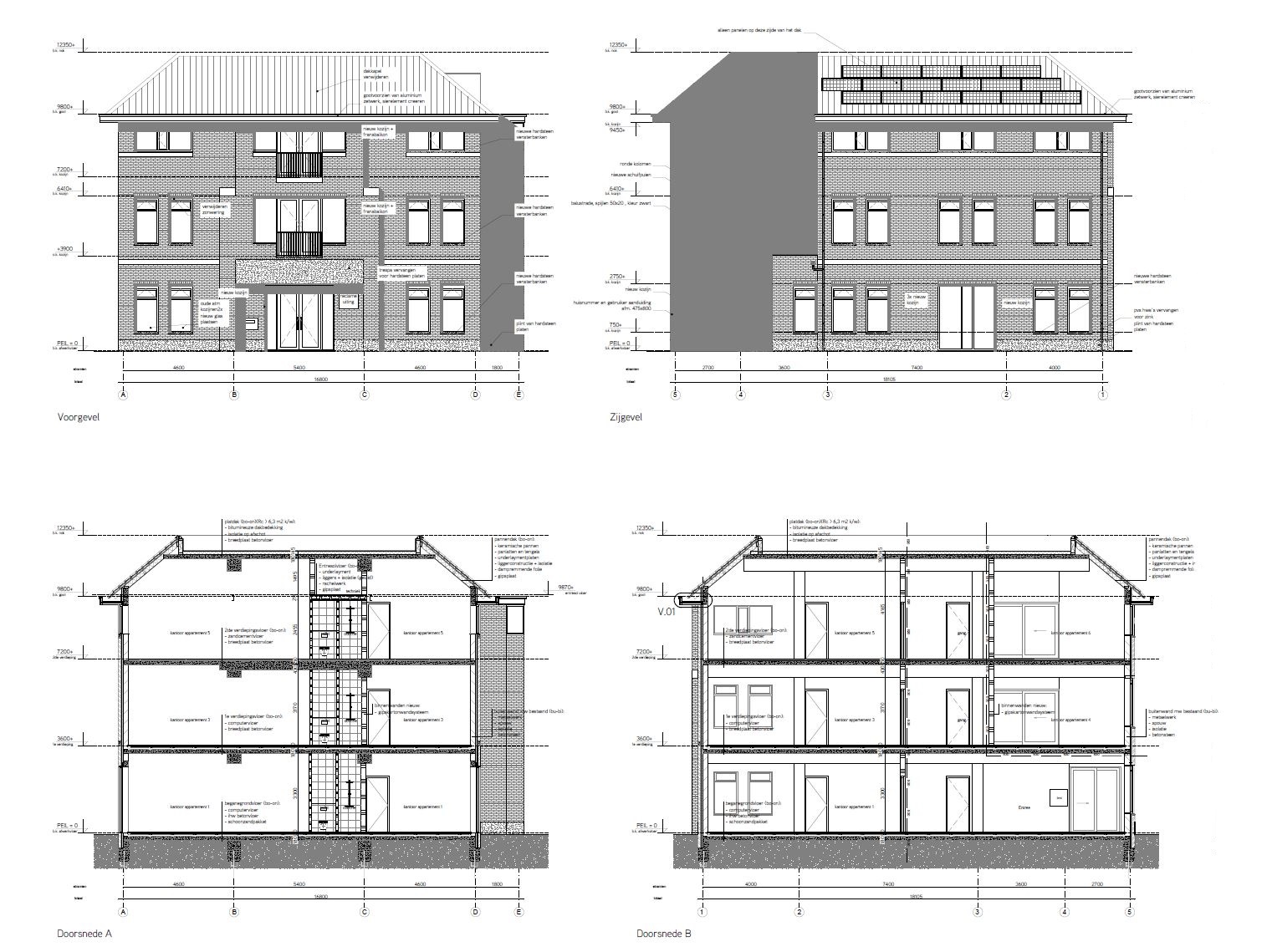
Zodra alle vergunningen rond zijn en het ontwerp staat, is het tijd voor bestek- en werktekeningen. Deze voorzien uw aannemer van alle benodigde details voor een vlekkeloze uitvoering. Of het nu gaat om bedrijfspand architectuur met een moderne uitstraling of een slimme indeling voor uw kantoor, onze tekenaars werken met AutoCAD en Revit/BIM om elk detail nauwkeurig vast te leggen. In combinatie met onze ervaring op het gebied van transformatie bestaande bouw biedt dit u de zekerheid dat uw project professioneel en doordacht wordt uitgewerkt.

Bedrijfspand Ontwerpen | Kantoor Ontwerpen | Kantoorinrichting Architect | DEPTH Architecten Oud-Beijerland

Innovatie en efficiëntie in bouwkundig tekenwerk

Onze CAD/BIM tekenaars zijn altijd alert op innovatieve oplossingen die de kwaliteit van de tekeningen en daarmee de bouw verbeteren. Dit komt niet alleen tot uiting in de technische details, maar ook in het totale proces, van eerste concept tot afwerking. Dankzij onze bouwkundige expertise en betrokken werkwijze ontstaat een solide basis voor uw project.